Retour à la liste

LAROUSSE | PARC SAINT ROMAN | 3 PIECES

La Rousse - Saint Roman / Parc Saint Roman

contacter l'agence Monaco Properties

Exclusivité

Vente

réf VMO-0622-PSR_260204-

Caractéristiques

Prix de vente3 600 000 €

Type de bienAppartement

Nb de pièces3

Chambre(s)2

Salle(s) de bain1

Superf. totale92.40 m²

Superf. terrasse20.10 m²

Étage2

Télécharger en PDF

Description

Situé au sein d’une résidence de grand standing avec service de conciergerie, piscine, sauna et salle de sport, cet appartement à rénover offre un beau potentiel de valorisation dans un cadre privilégié.
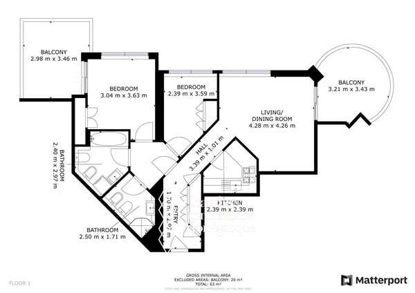
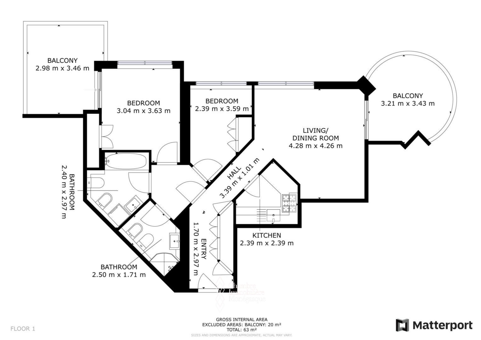
Il se compose de :
- Un hall d’entrée

- Un séjour avec salon et salle à manger, ouvrant sur une terrasse bénéficiant d’une agréable vue mer

- Une cuisine indépendante

- Une première chambre

- Une seconde chambre avec accès à une loggia

- Une salle de bains

- Une salle d’eau

Une cave complète ce bien.
Possibilité d’acquérir une place de parking en sus du prix, un atout rare et recherché.

Monaco Properties

T. +377 97 97 33 97 info@mpmonaco.com https://www.monacoproperties.mc Voir tous les biens

Galerie Photos

Ce document ne fait partie d'aucune offre ou contrat. Toutes mesures, surfaces et distances sont approximatives. Le descriptif et les plans ne sont donnés qu'à titre indicatif et leur exactitude n'est pas garantie. Les photographies ne montrent que certaines parties de la propriété. L'offre est valable sauf en cas de vente, retrait de vente, changement de prix ou d'autres conditions, sans préalable.